4608 Westchester Dr, Los Angeles, CA 91364
Toggle Navigation
Images
Map
Floor Plans
3D Tour
4608 Westchester Dr
Los Angeles, CA 91364
Scroll to Content
Images
Slideshow
Photo Grid
Hide
Previous
Next
Show more
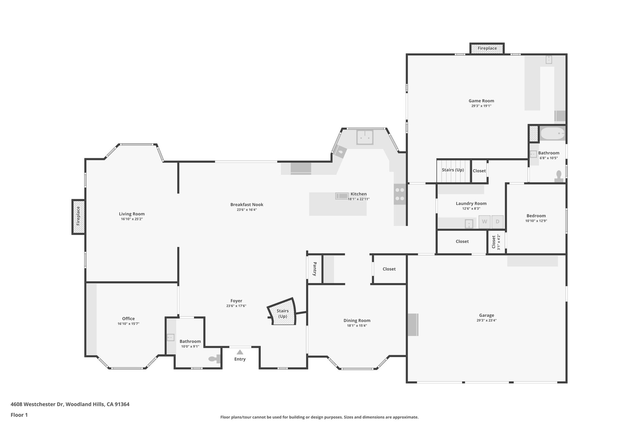
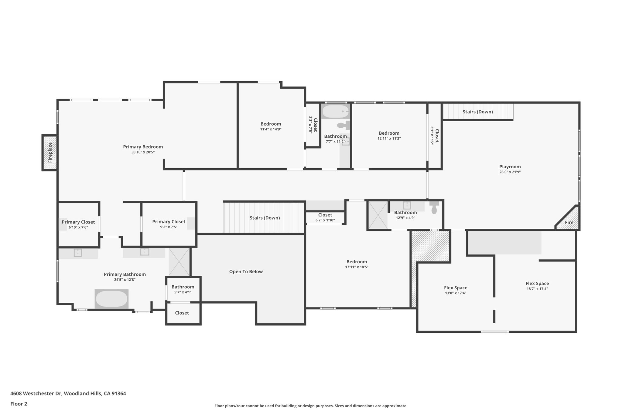
Floor Plans
Slideshow
Photo Grid
Hide
Previous
Next
3D Tour