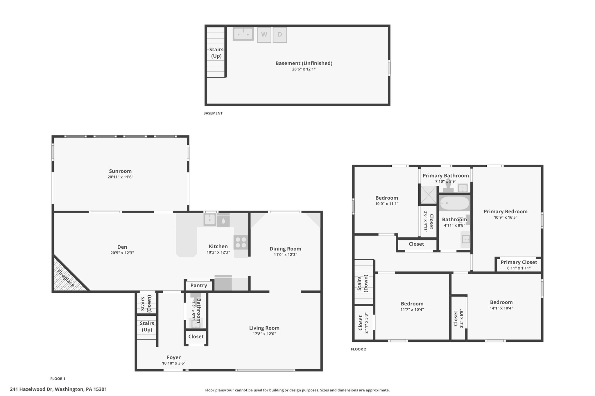
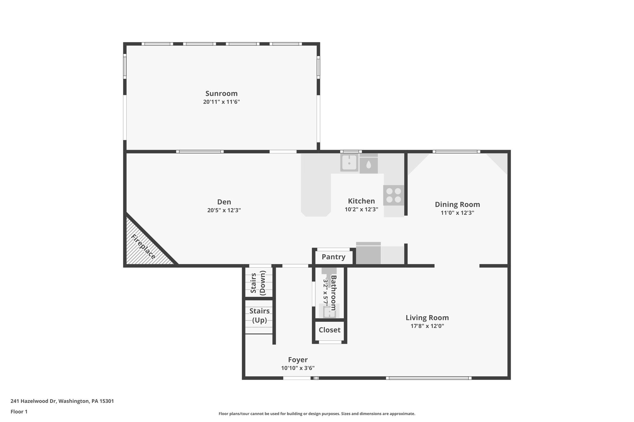
241 Hazelwood Dr, Washington, PA 15301
Toggle Navigation
Details
Images
Map
Floor Plans
3D Tour
241 Hazelwood Dr
Washington, PA 15301
Scroll to Content
Details
1,849 Sq/ft
Images
Slideshow
Photo Grid
Hide
Previous
Next
Show more
Floor Plans
Slideshow
Photo Grid
Hide
Previous
Next
3D Tour