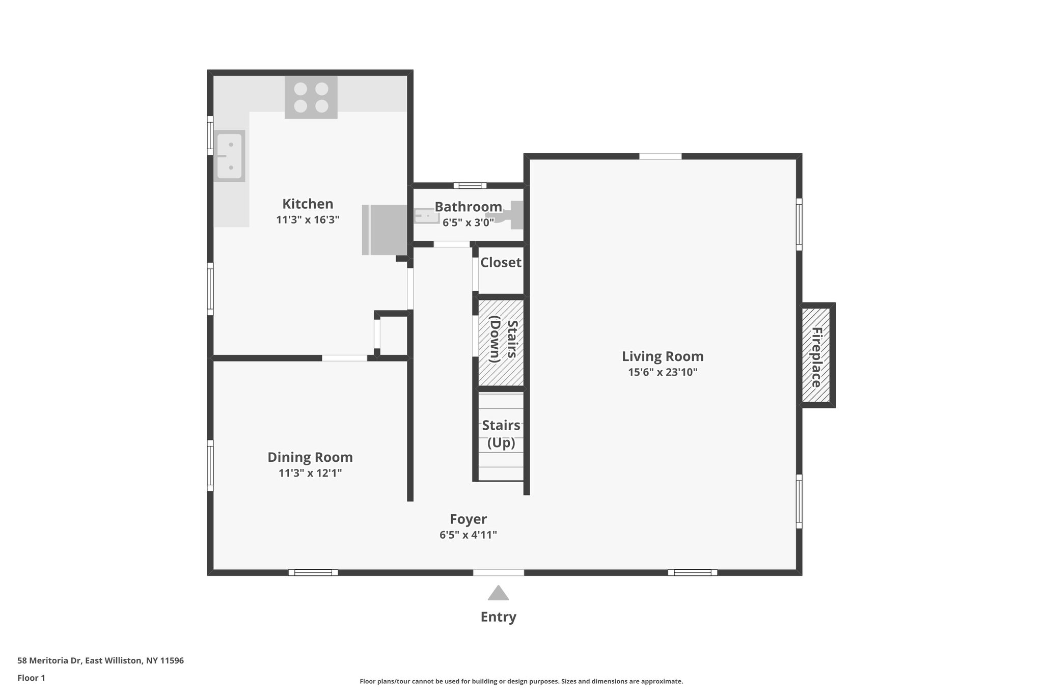
58 Meritoria Dr, East Williston, NY 11596
Toggle Navigation
Images
Floor Plans
3D Tour
Map
58 Meritoria Dr
East Williston, NY 11596
Scroll to Content
Images
Slideshow
Photo Grid
Hide
Previous
Next
Show more
Floor Plans
Slideshow
Photo Grid
Hide
Previous
Next
3D Tour