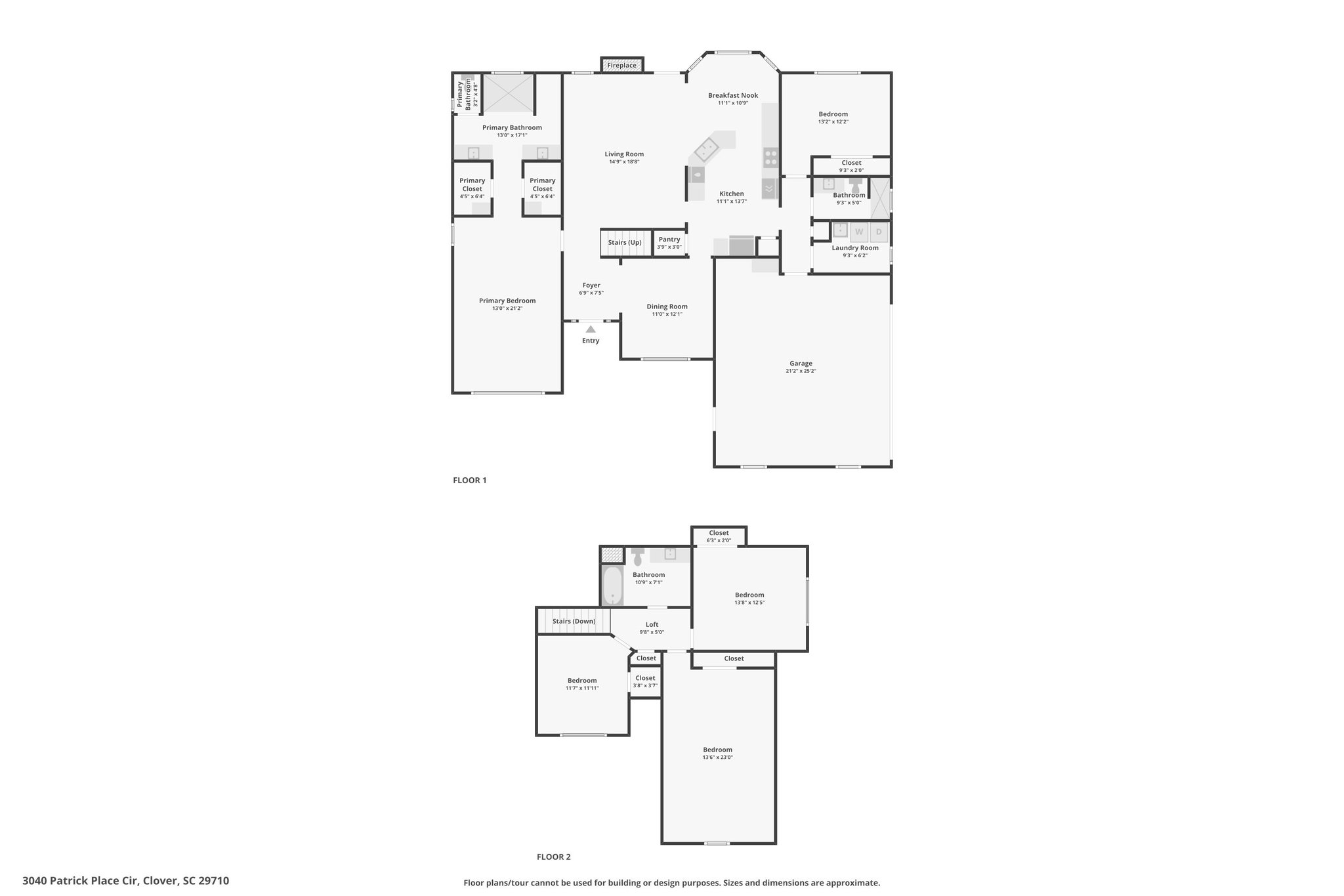
3040 Patrick Place Cir, Clover, SC 29710
Toggle Navigation
Images
Videos
Floor Plans
3D Tour
Map
3040 Patrick Place Cir
Clover, SC 29710
Scroll to Content
Images
Slideshow
Photo Grid
Hide
Previous
Next
Show more
Videos
Floor Plans
Slideshow
Photo Grid
Hide
Previous
Next
3D Tour