108 N 10th Ave, West Bend, WI 53095
Toggle Navigation
Images
Floor Plans
3D Tour
Map
108 N 10th Ave
West Bend, WI 53095
Scroll to Content
Images
Slideshow
Photo Grid
Hide
Previous
Next
Show more
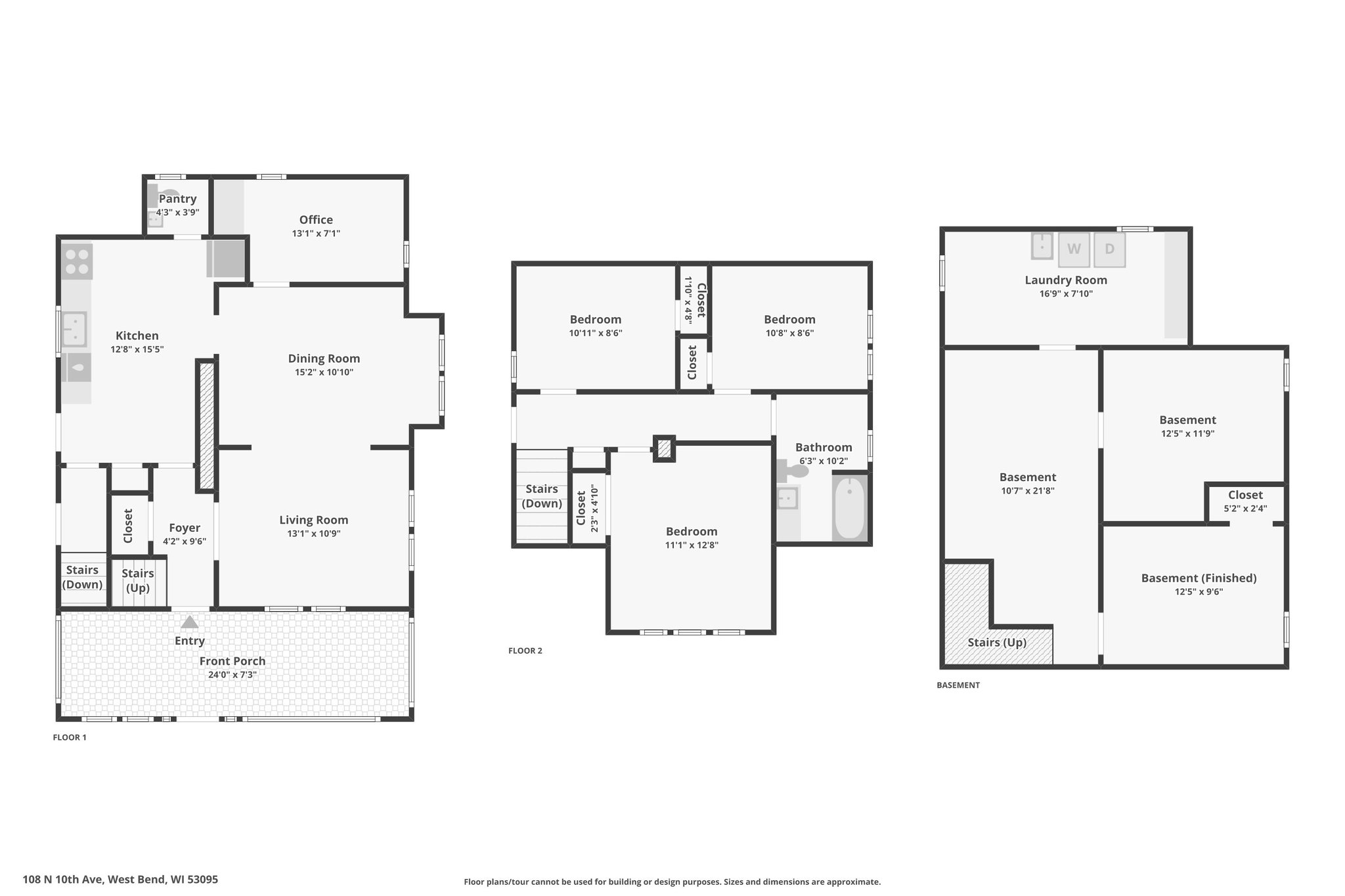
Floor Plans
Slideshow
Photo Grid
Hide
Previous
Next
3D Tour