4648 Evanston Ave, Indianapolis, IN 46205
Toggle Navigation
Details
Images
Videos
Floor Plans
3D Tour
Map
4648 Evanston Ave
Indianapolis, IN 46205
Scroll to Content
Details
1,392 Sq/ft
Images
Slideshow
Photo Grid
Hide
Previous
Next
Show more
Videos
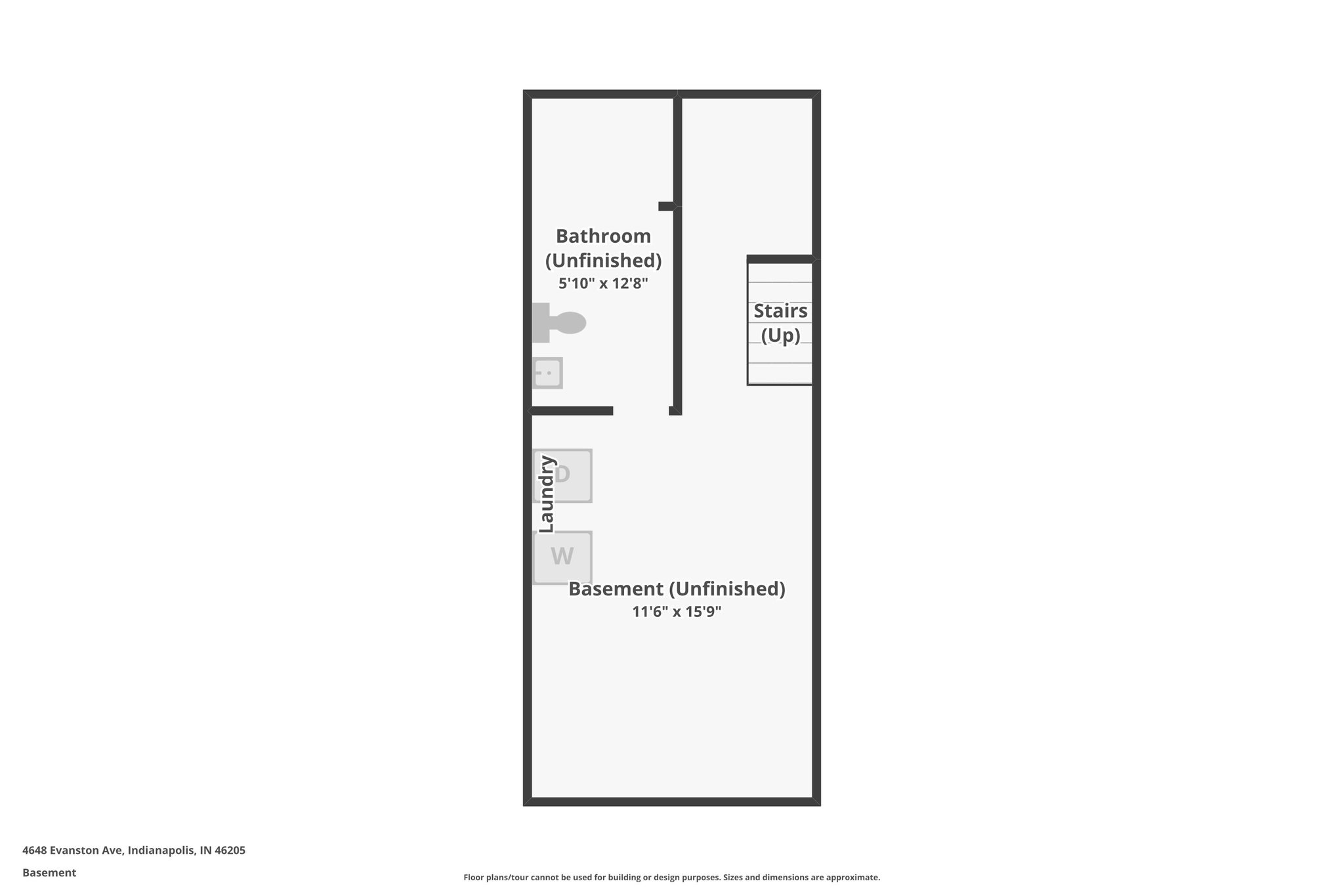
Floor Plans
Slideshow
Photo Grid
Hide
Previous
Next
3D Tour