63 Starboard Cir 64, Akron, OH 44319
Toggle Navigation
Images
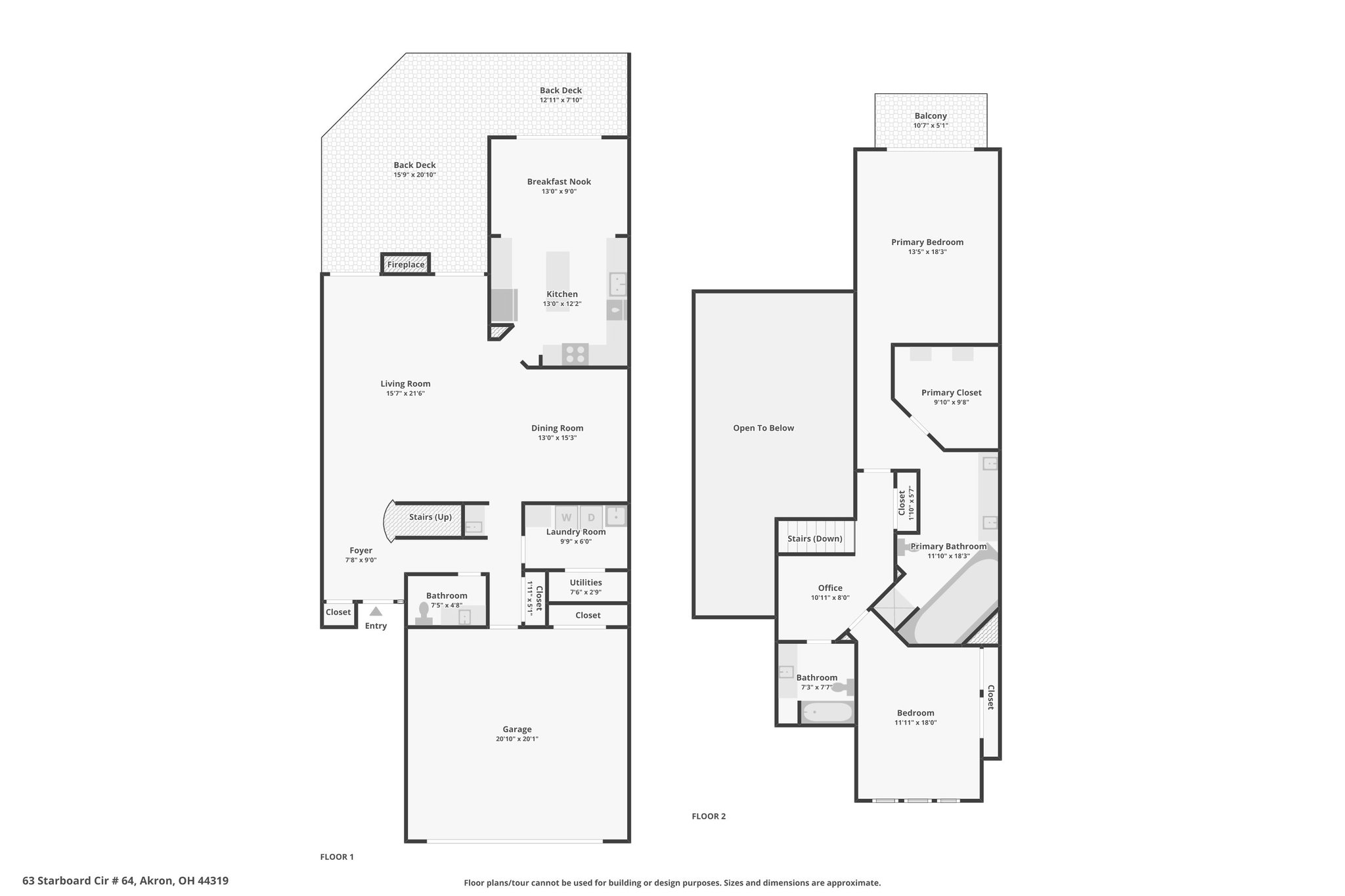
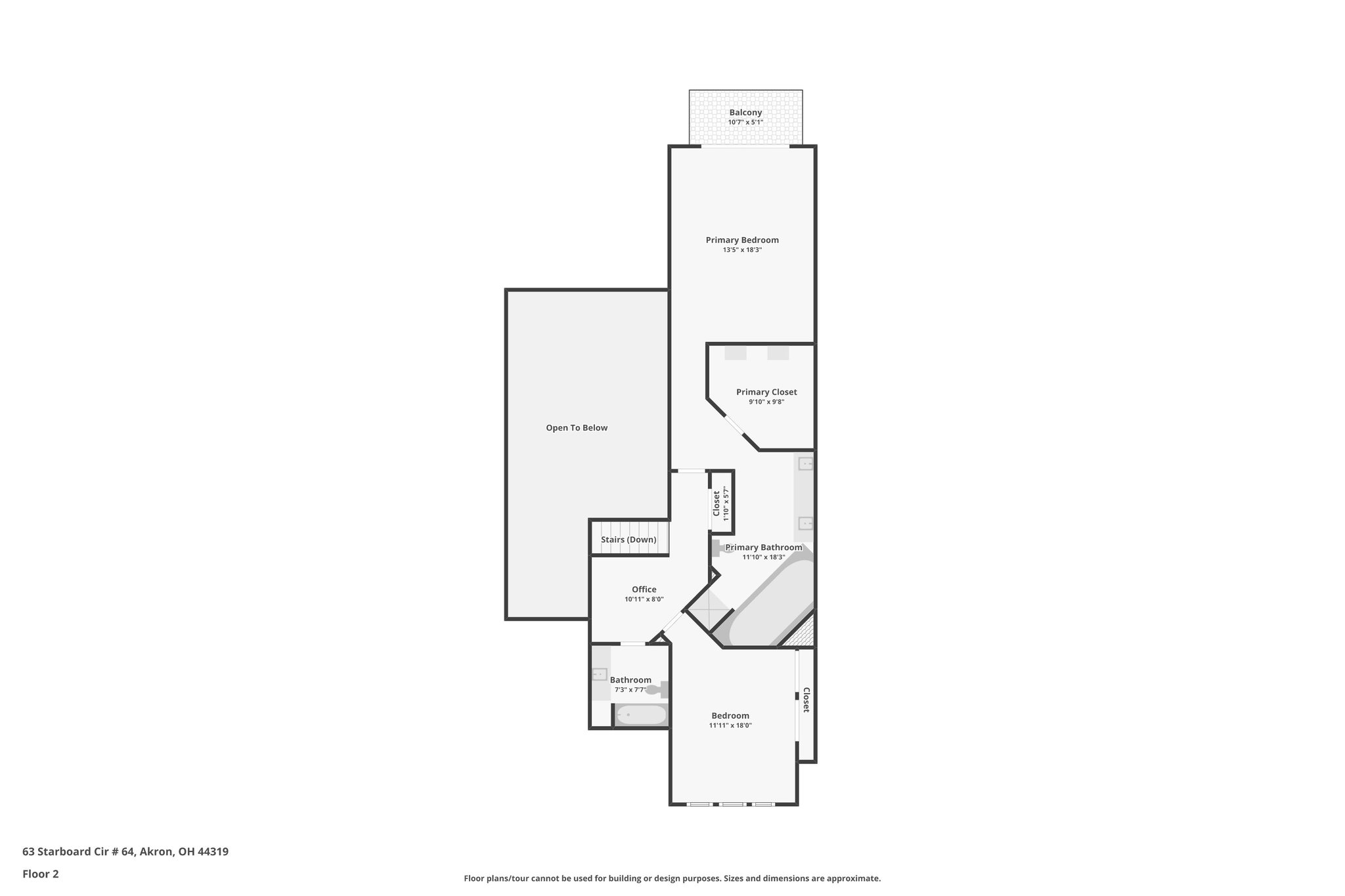
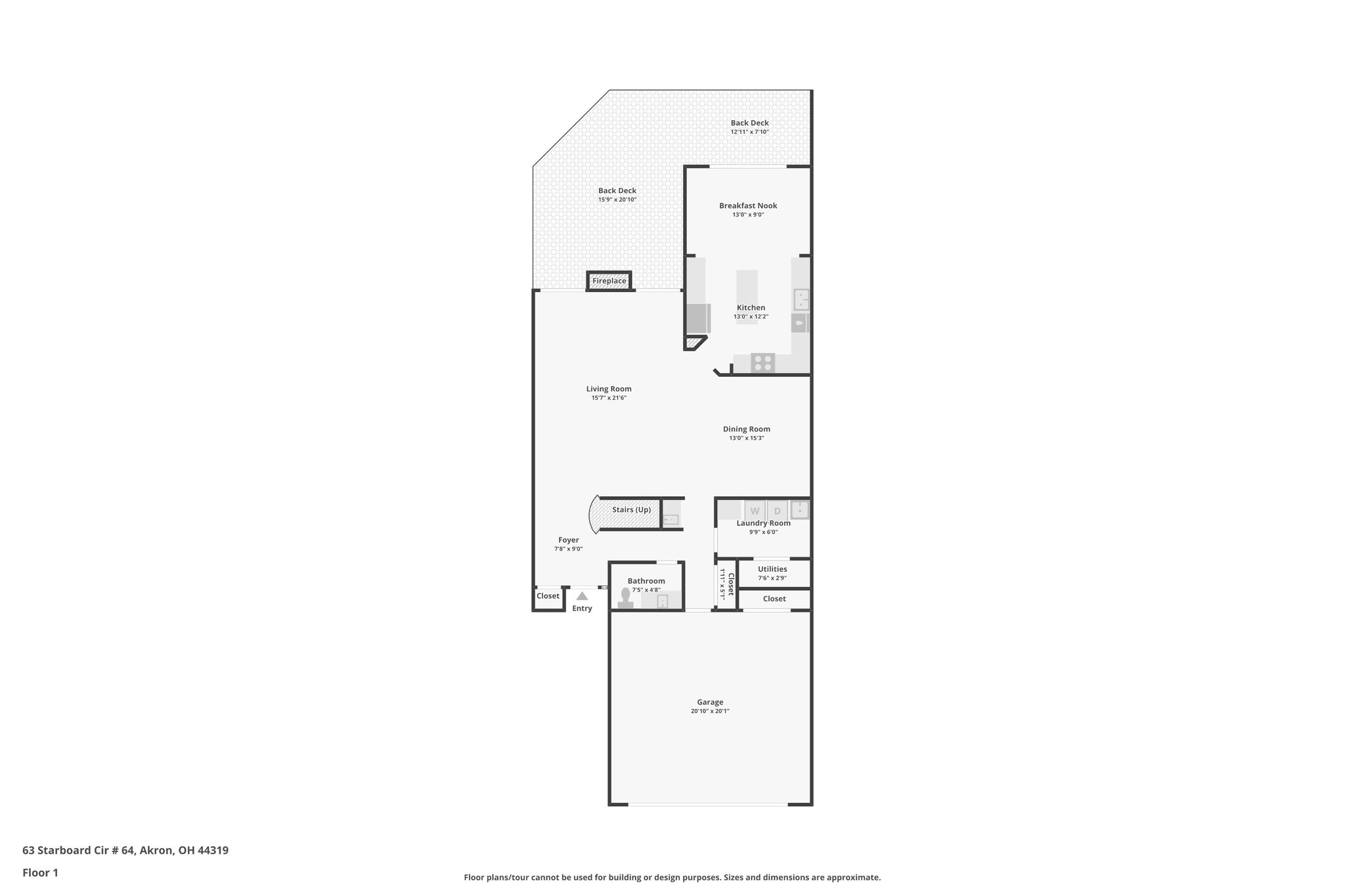
Floor Plans
3D Tour
Map
63 Starboard Cir 64
Akron, OH 44319
Scroll to Content
Images
Slideshow
Photo Grid
Hide
Previous
Next
Show more
Floor Plans
Slideshow
Photo Grid
Hide
Previous
Next
3D Tour