5409 Valley Dr, McFarland, WI 53558
Toggle Navigation
Images
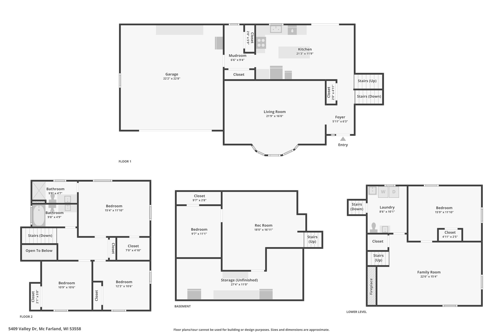
Floor Plans
3D Tour
Map
5409 Valley Dr
McFarland, WI 53558
Scroll to Content
Images
Slideshow
Photo Grid
Hide
Previous
Next
Show more
Floor Plans
Slideshow
Photo Grid
Hide
Previous
Next
3D Tour