2053 Bellefontaine St, Indianapolis, IN 46202
Toggle Navigation
Images
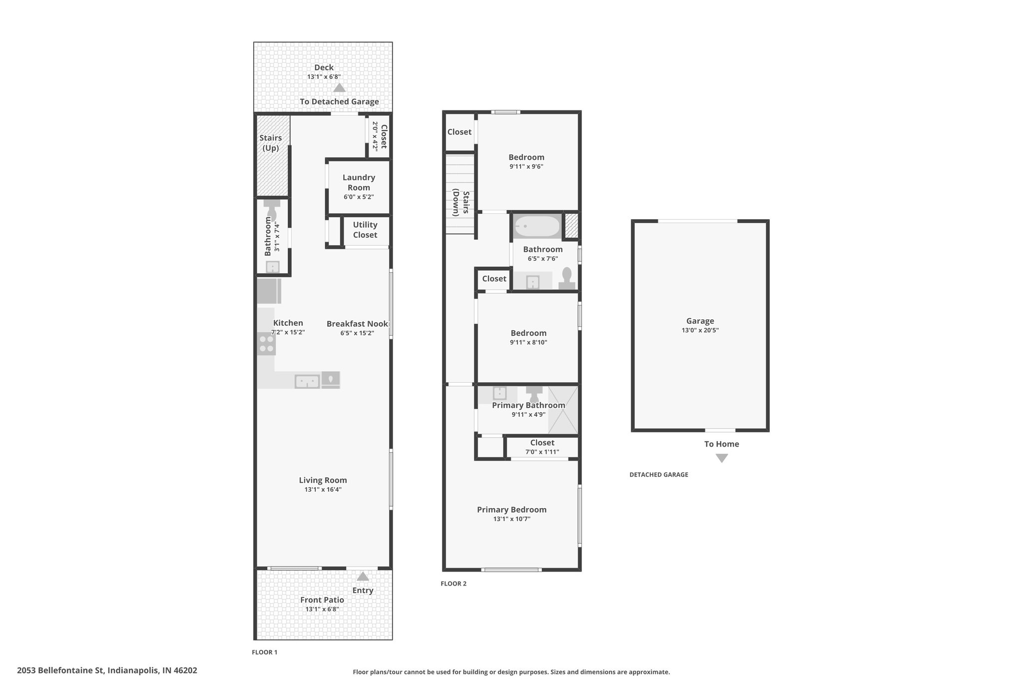
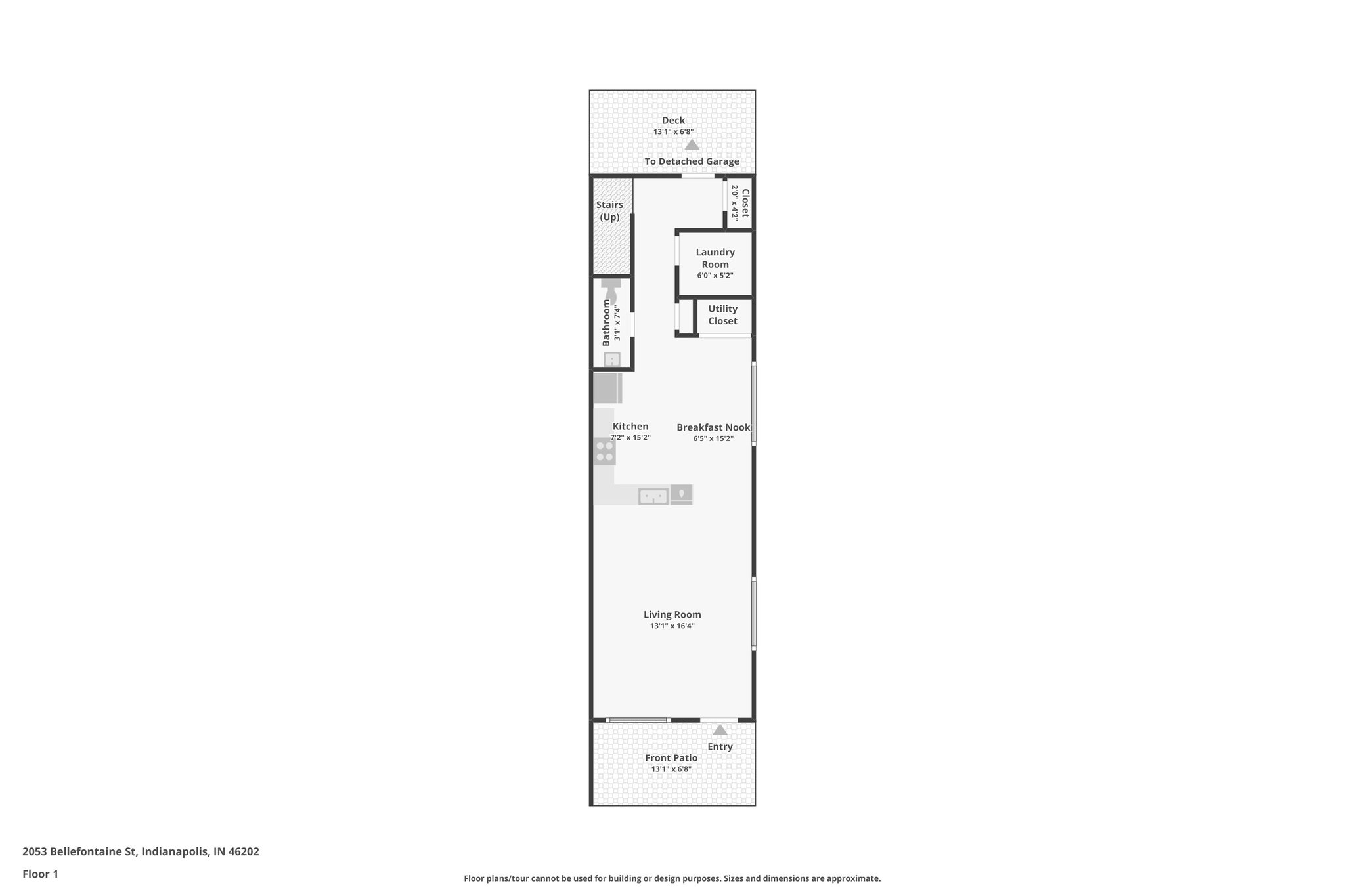
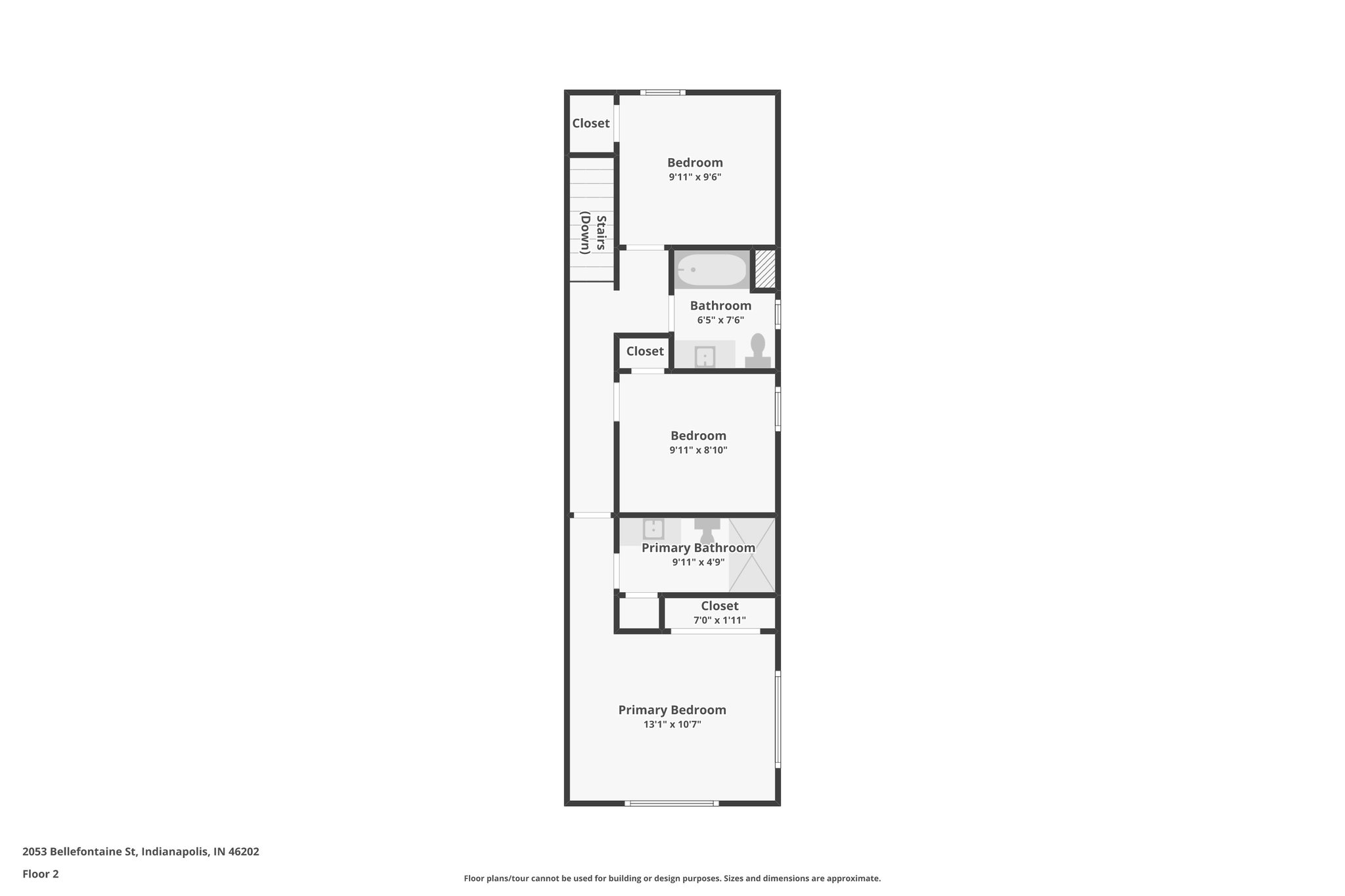
Floor Plans
3D Tour
Map
2053 Bellefontaine St
Indianapolis, IN 46202
Scroll to Content
Images
Slideshow
Photo Grid
Hide
Previous
Next
Show more
Floor Plans
Slideshow
Photo Grid
Hide
Previous
Next
3D Tour