17 Sunwood Dr, Miller Place, NY 11764
Toggle Navigation
Images
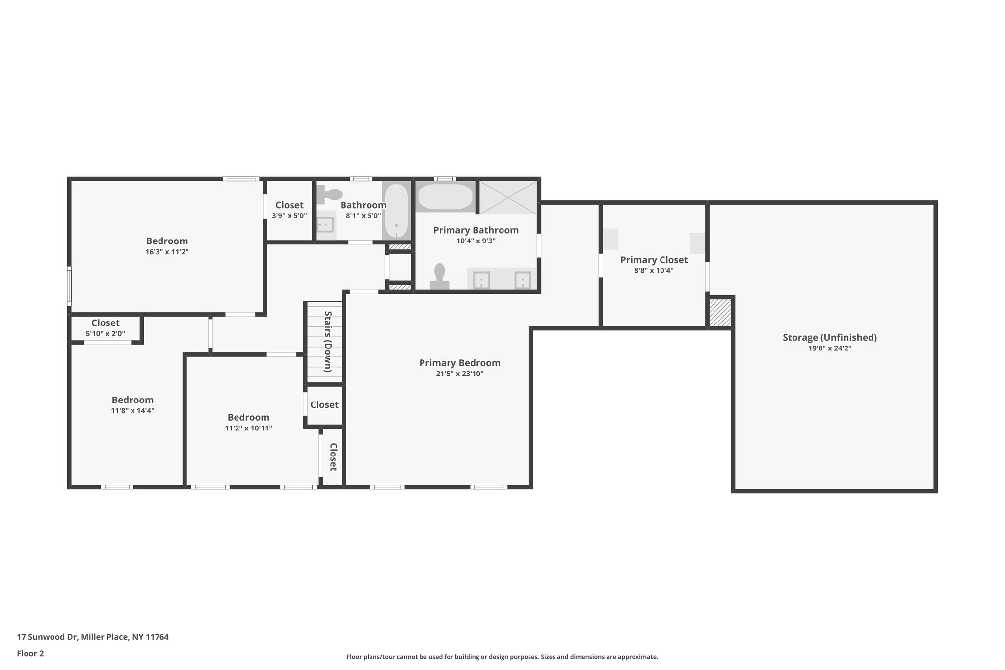
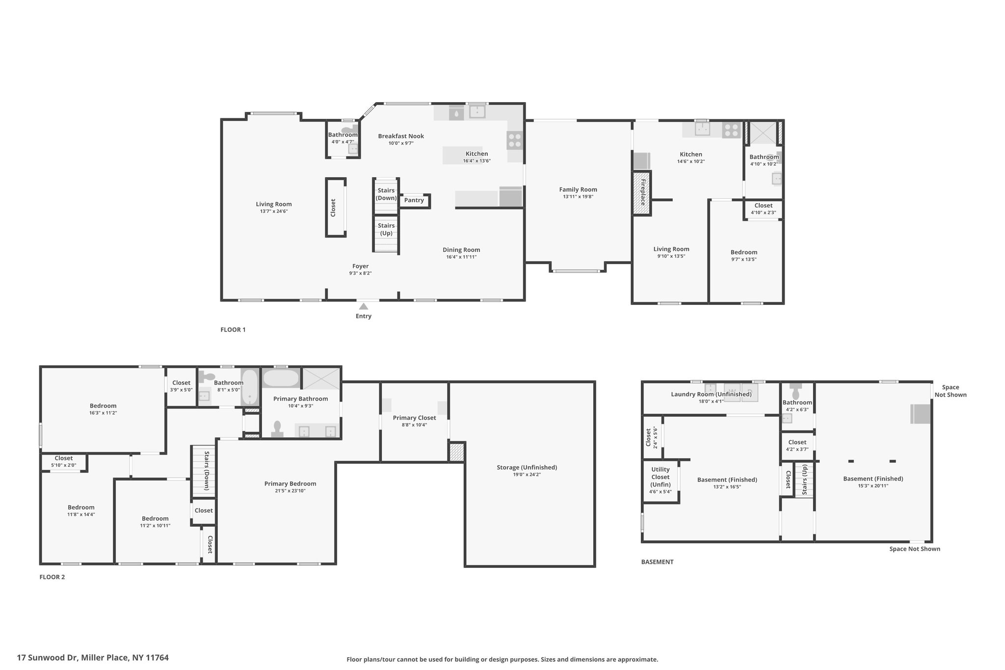
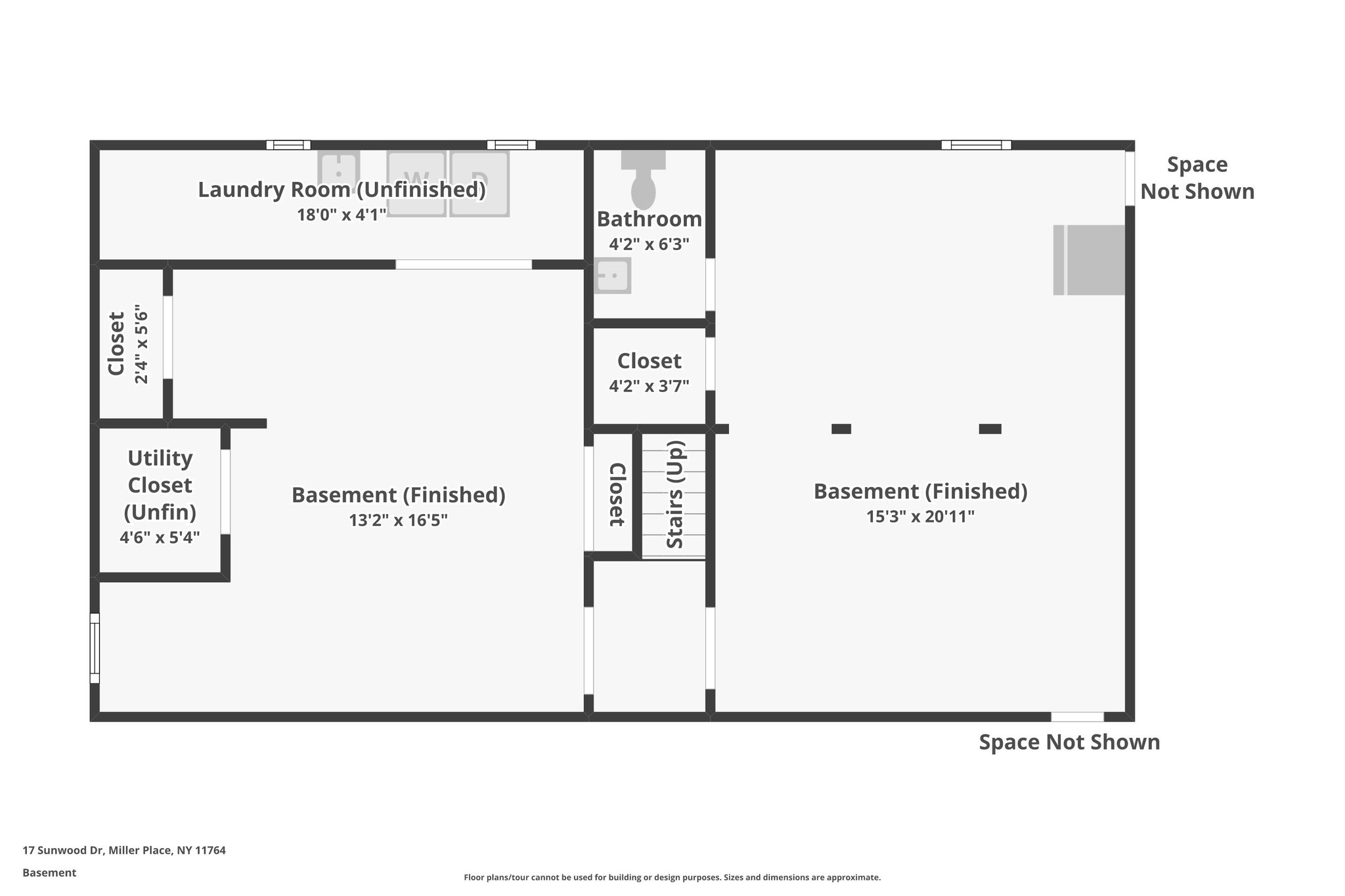
Floor Plans
3D Tour
Map
17 Sunwood Dr
Miller Place, NY 11764
Scroll to Content
Images
Slideshow
Photo Grid
Hide
Previous
Next
Show more
Floor Plans
Slideshow
Photo Grid
Hide
Previous
Next
3D Tour