957 Devonwood Dr, Wadsworth, OH 44281
Toggle Navigation
Images
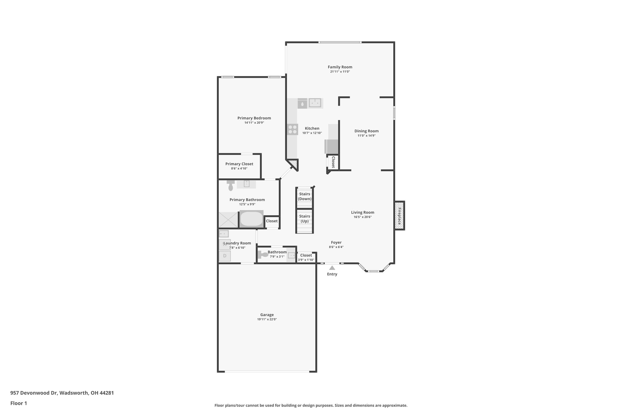
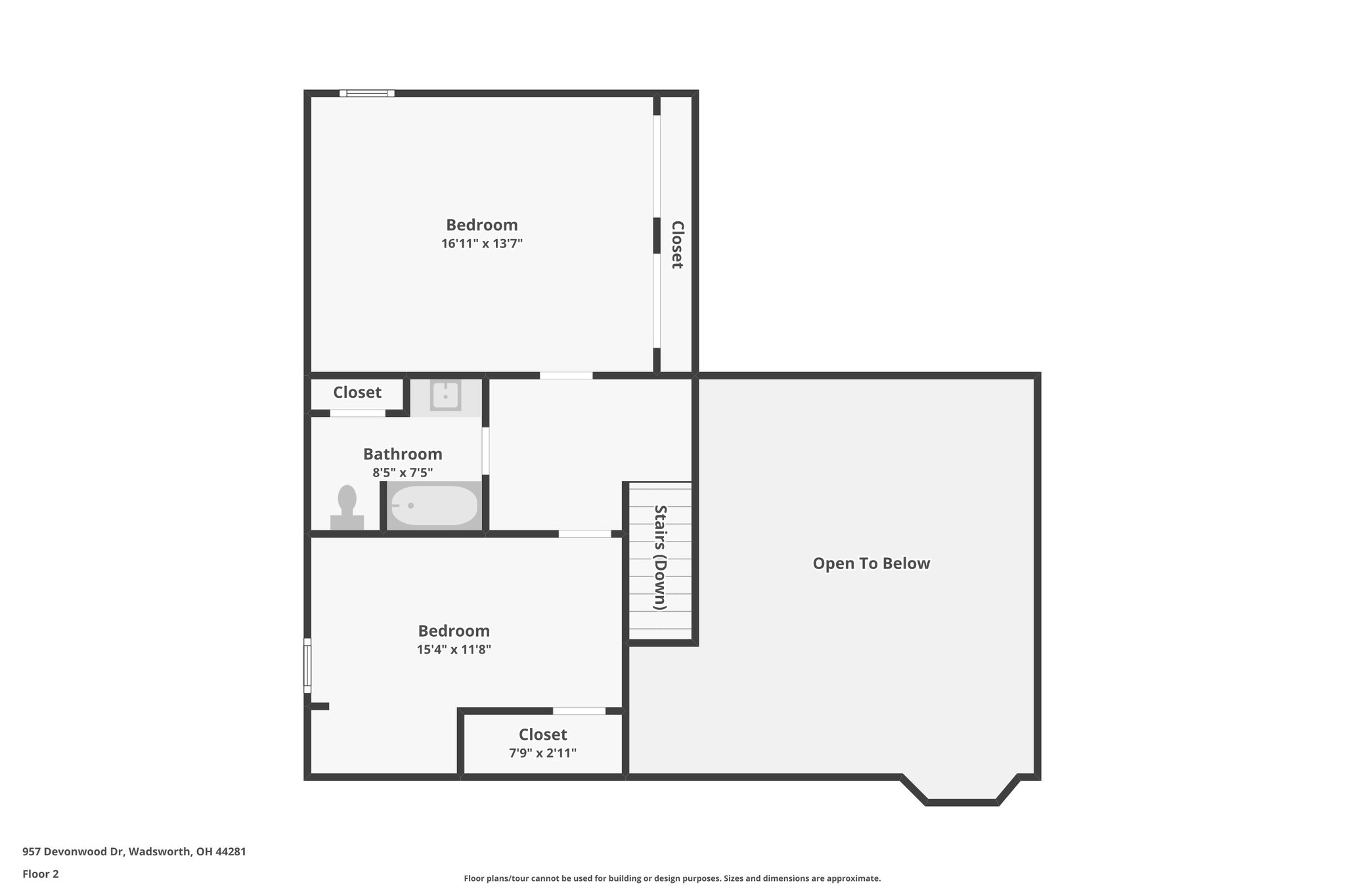
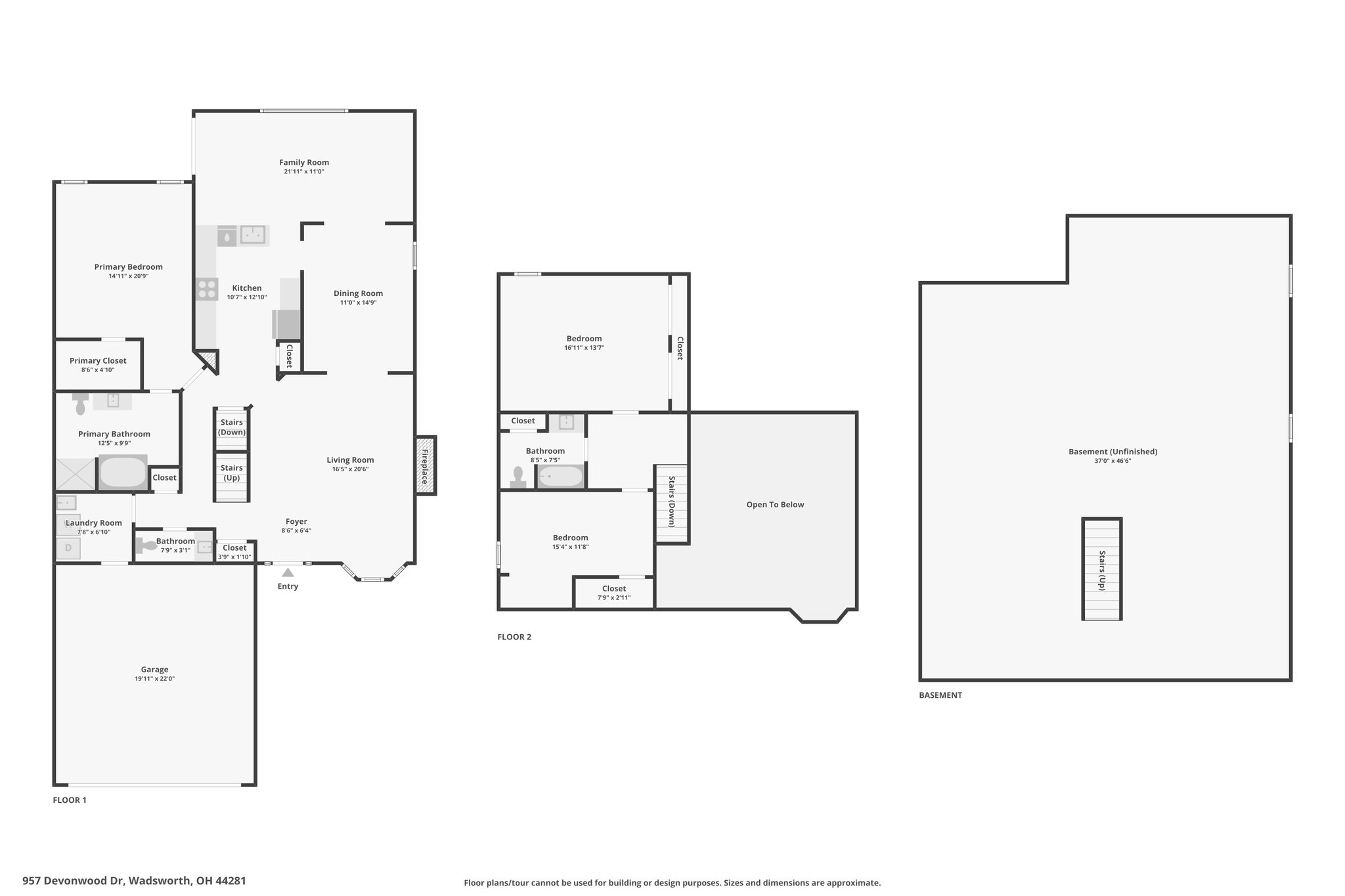
Floor Plans
3D Tour
Map
957 Devonwood Dr
Wadsworth, OH 44281
Scroll to Content
Images
Slideshow
Photo Grid
Hide
Previous
Next
Show more
Floor Plans
Slideshow
Photo Grid
Hide
Previous
Next
3D Tour