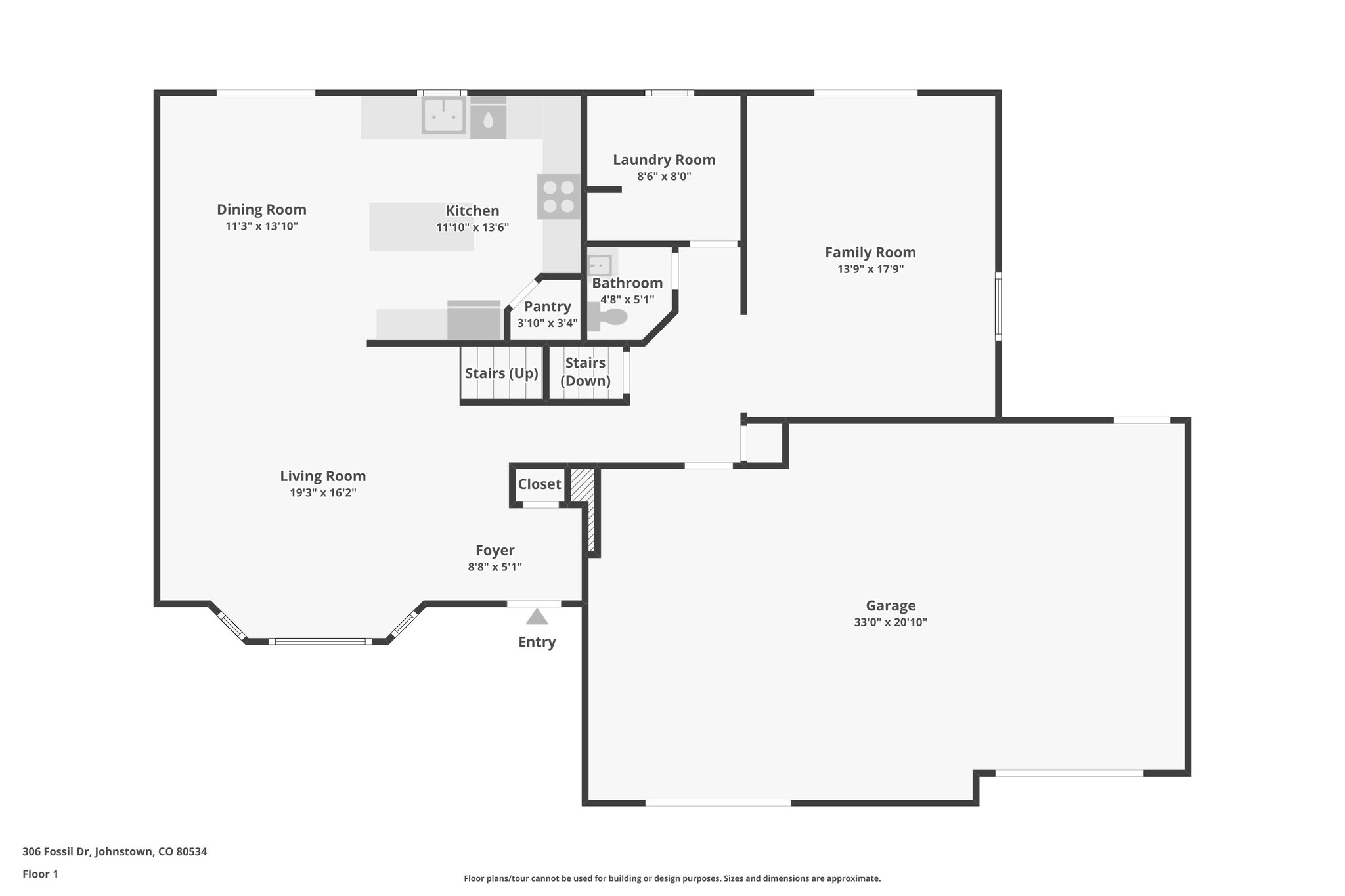
306 Fossil Dr, Johnstown, CO 80534
Toggle Navigation
Images
Videos
Floor Plans
3D Tour
Map
306 Fossil Dr
Johnstown, CO 80534
Scroll to Content
Images
Slideshow
Photo Grid
Hide
Previous
Next
Show more
Videos
Floor Plans
Slideshow
Photo Grid
Hide
Previous
Next
3D Tour