627 Somerset Dr, Golden, CO 80401
Toggle Navigation
Images
Floor Plans
3D Tour
Map
627 Somerset Dr
Golden, CO 80401
Scroll to Content
Images
Slideshow
Photo Grid
Hide
Previous
Next
Show more
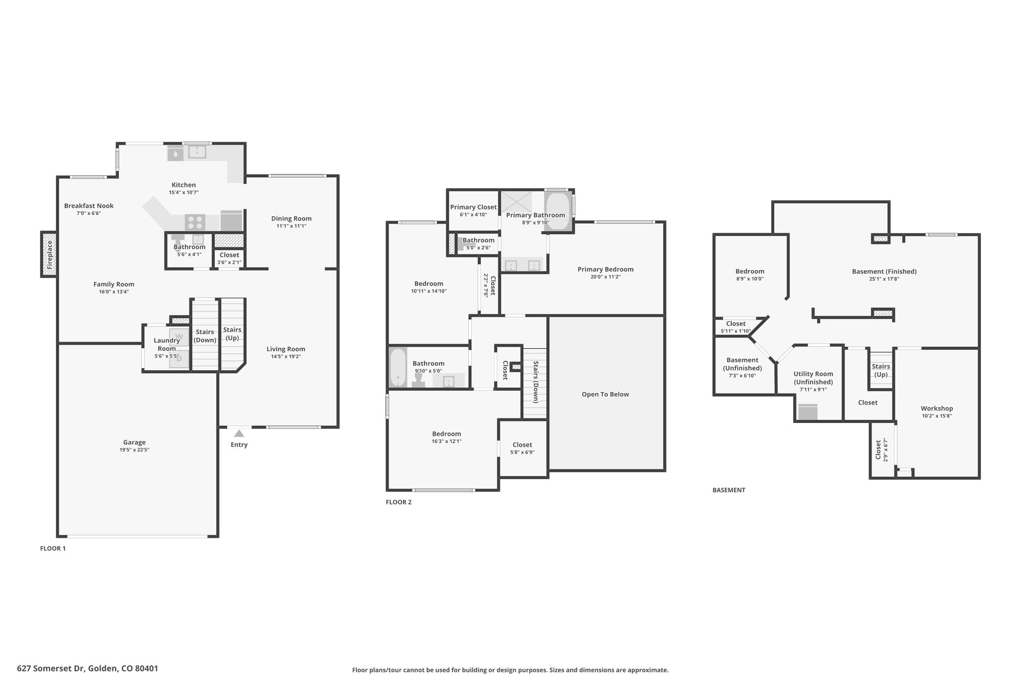
Floor Plans
Slideshow
Photo Grid
Hide
Previous
Next
3D Tour