12613 Medford Rd, Philadelphia, PA 19154
Toggle Navigation
Images
Map
Floor Plans
3D Tour
12613 Medford Rd
Philadelphia, PA 19154
Scroll to Content
Images
Slideshow
Photo Grid
Hide
Previous
Next
Show more
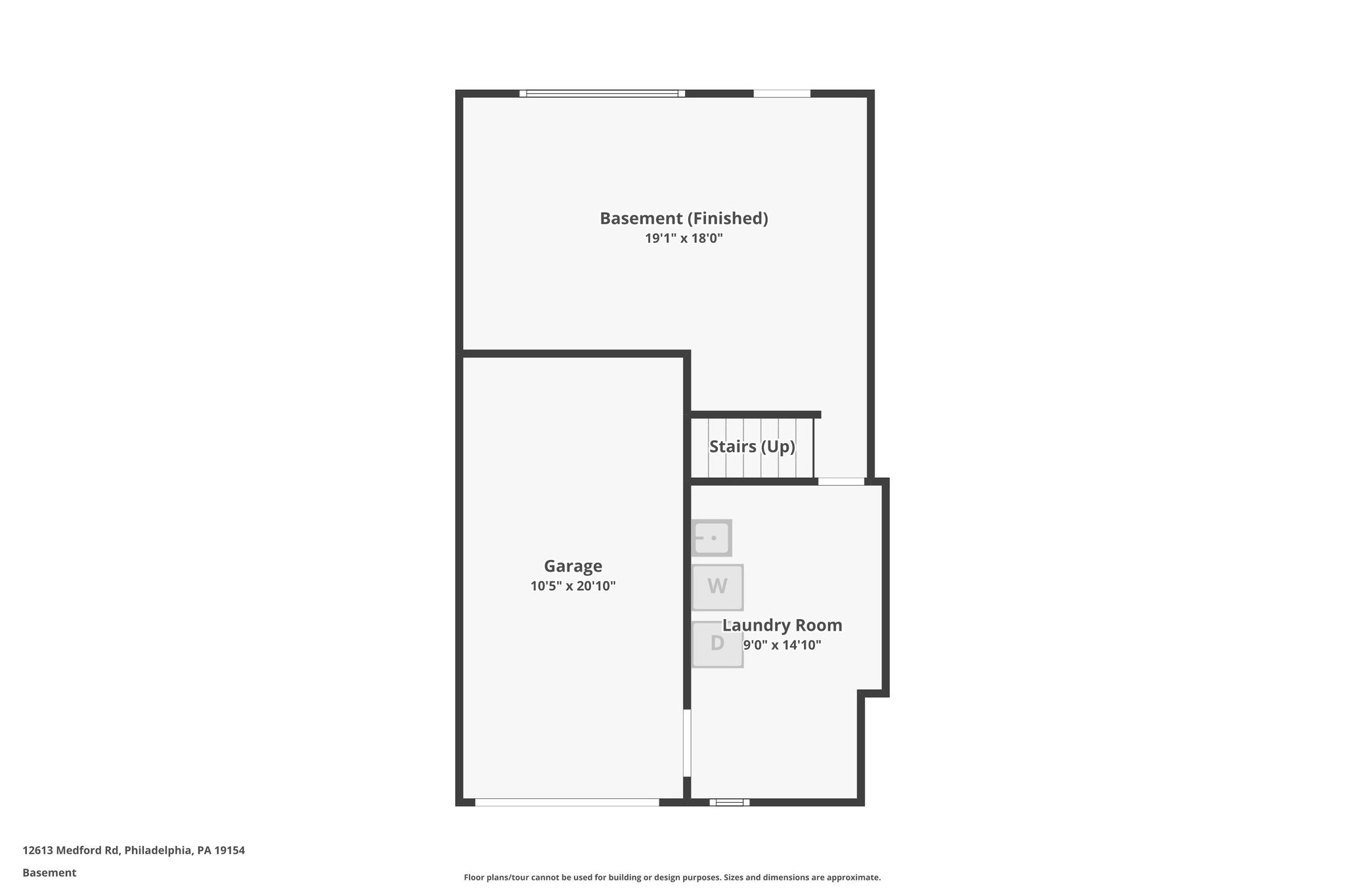
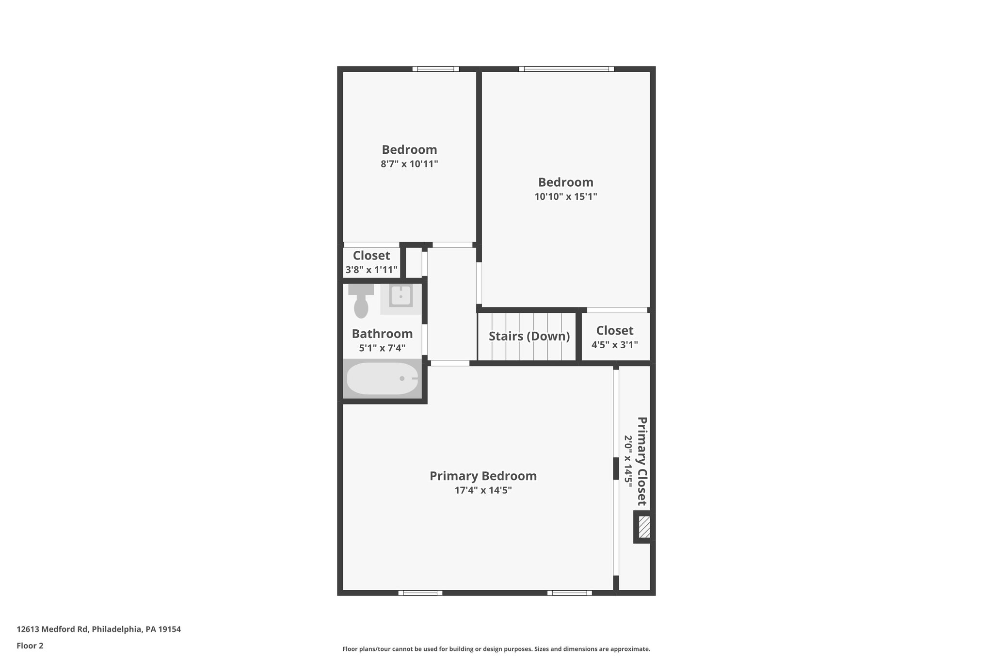
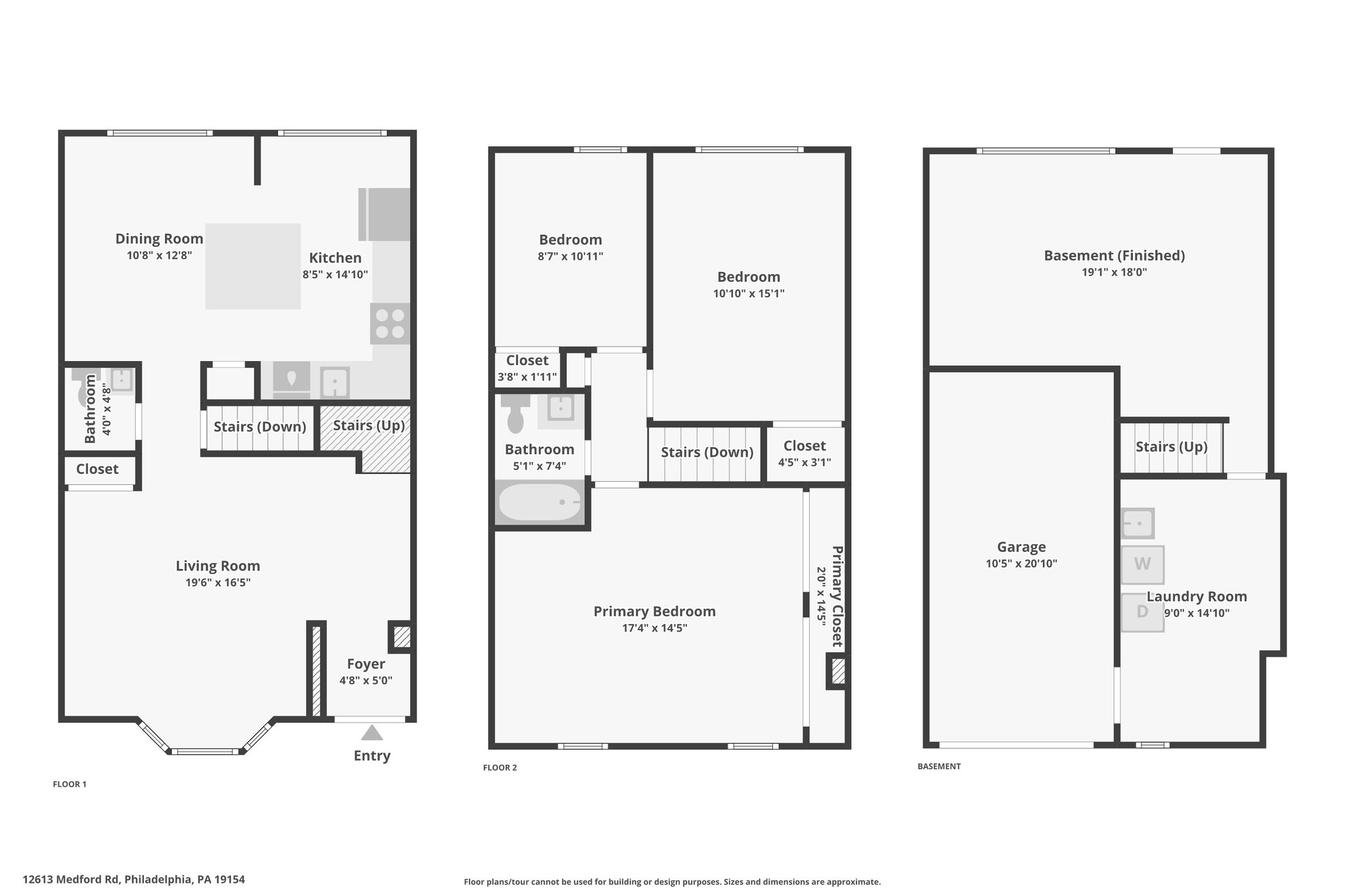
Floor Plans
Slideshow
Photo Grid
Hide
Previous
Next
3D Tour