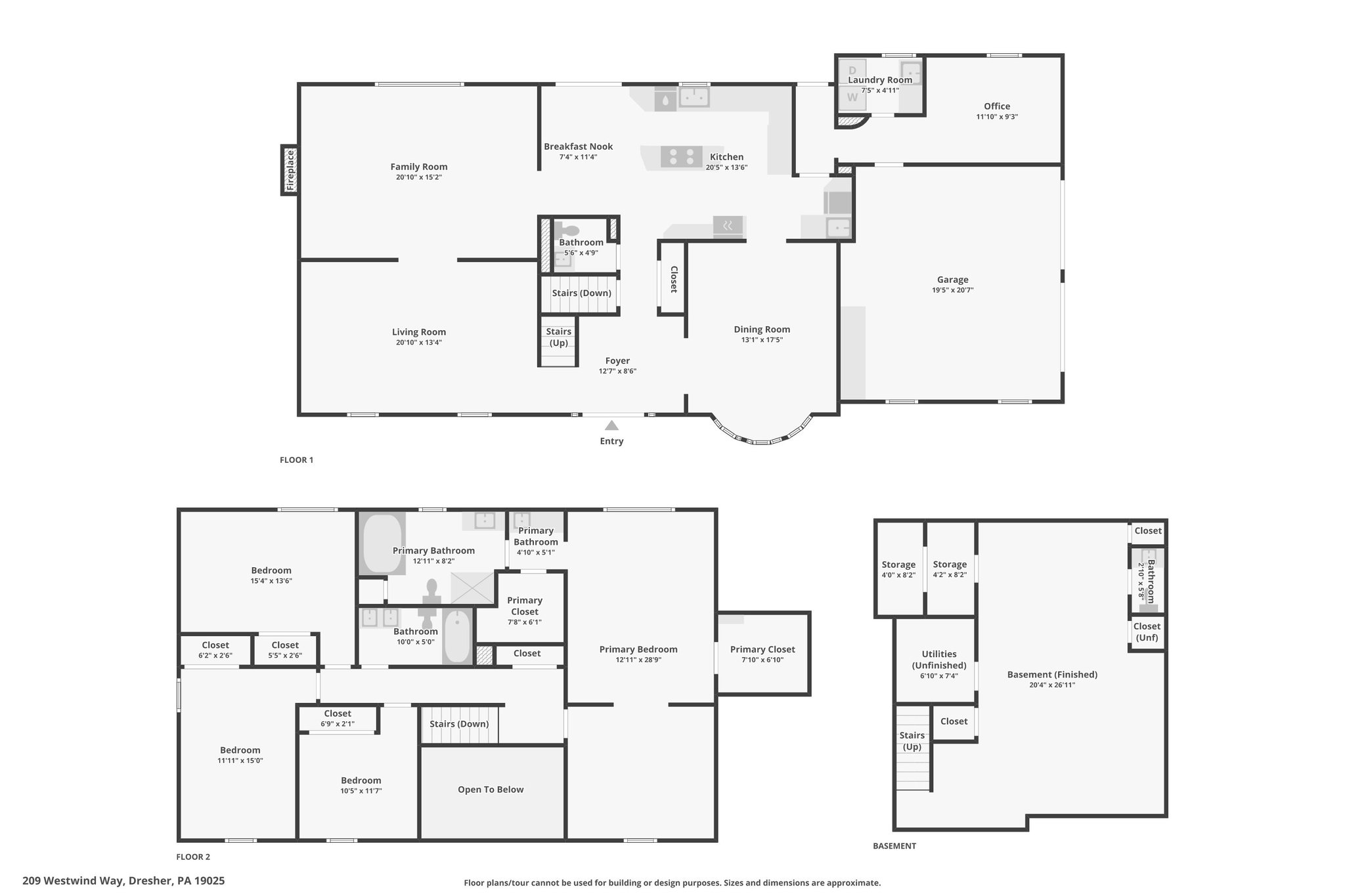
209 Westwind Way, Dresher, PA 19025
Toggle Navigation
Details
Images
Map
Floor Plans
3D Tour
209 Westwind Way
Dresher, PA 19025
Scroll to Content
Details
4,000 Sq/ft
Images
Slideshow
Photo Grid
Hide
Previous
Next
Show more
Floor Plans
Slideshow
Photo Grid
Hide
Previous
Next
3D Tour