35980 Michael Dr, Solon, OH 44139
Toggle Navigation
Details
Images
Map
Videos
Floor Plans
3D Tour
35980 Michael Dr
Solon, OH 44139
Scroll to Content
Details
3,278 Sq/ft
Images
Slideshow
Photo Grid
Hide
Previous
Next
Show more
Videos
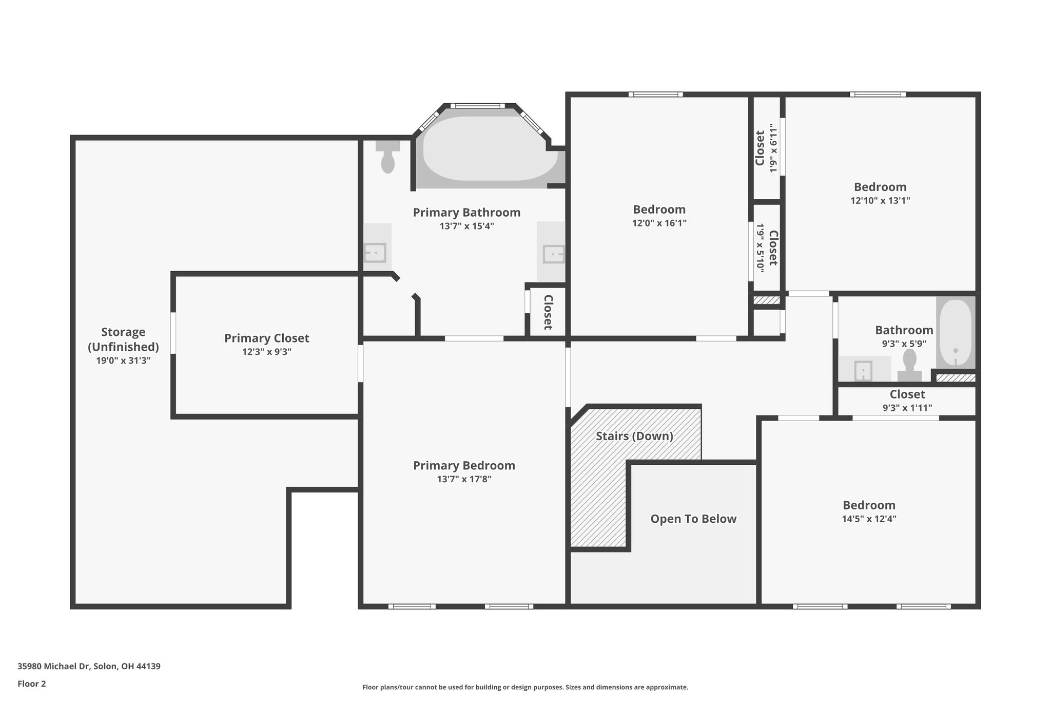
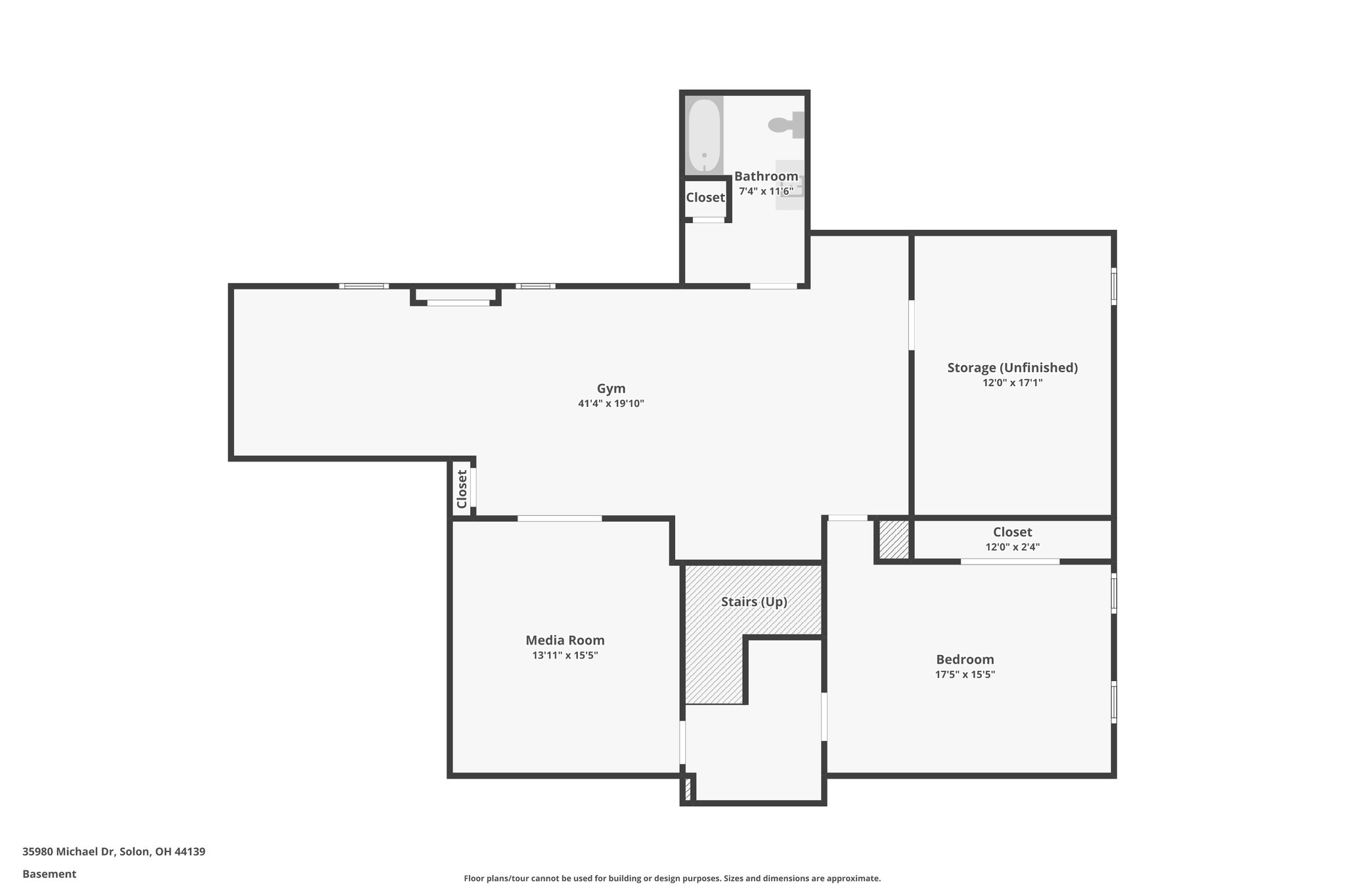
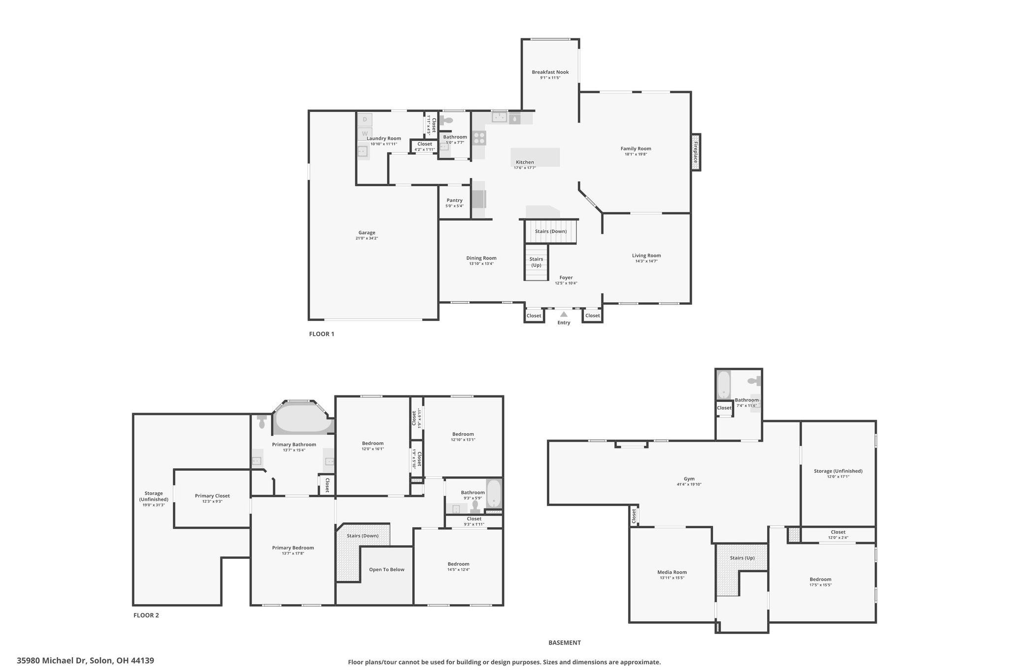
Floor Plans
Slideshow
Photo Grid
Hide
Previous
Next
3D Tour