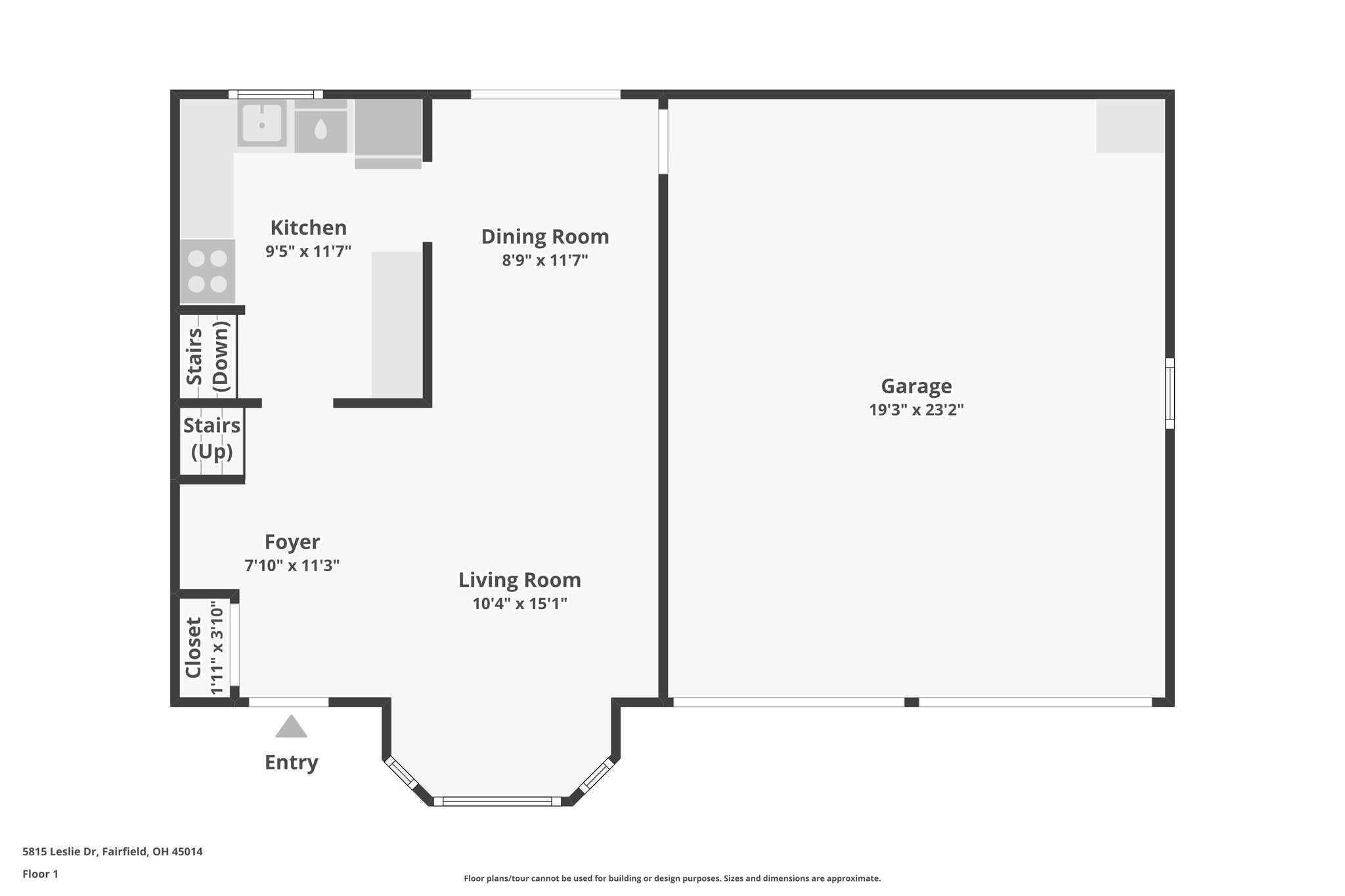
5815 Leslie Dr, Fairfield, OH 45014
Toggle Navigation
Images
Floor Plans
3D Tour
Map
5815 Leslie Dr
Fairfield, OH 45014
Scroll to Content
Images
Slideshow
Photo Grid
Hide
Previous
Next
Show more
Floor Plans
Slideshow
Photo Grid
Hide
Previous
Next
3D Tour